Az értékesítő:
Sápi Balázs
+36 20 772 2429

Eladó családi ház Gödöllő, 115 000 000 Ft, 113 négyzetméter

115 000 000 Ft
családi ház, 113 négyzetméter
Építőanyag:
Tégla
Egész szobák:
5
Komfort fokozat:
Dupla komfort
Ingatlan állapota:
Kitűnő
Azonosító:
11602160
Értékesítés típusa:
eladó
Ingatlan típusa:
családi ház
Jelleg:
Ikerház
Település:
Gödöllő
Alapterület:
113
Telekterület:
370
Ár:
115 000 000 Ft
Fűtés jellege:
Központi
Kor:
Új építésű
Telekterület típusa:
négyzetméter
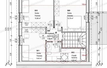
Gödöllő központhoz közeli kertvárosi részén, nappali + 4 szobás újépítésű ikerházfél referenciákkal rendelkező, megbízható építőtől eladó! Műszaki paraméterek: - 30-as Porotherm tégla falazat + 10cm grafit szigetelés, - beton cserépfedés, - födémen 20cm vastag kőzetgyapot, - 3 réteg üvegezésű, 5 légkamrás hőszigetelt nyílászárókkal, redőny előkészítéssel, - kondenzációs kazán vagy hőszivattyú (+3Mft), padlófűtéssel, - riasztó előkészítés,  - hűtő-fűtő klíma 250.000.-Ft-ig, - bejárati ajtó: 250.000.-Ft, - beltéri ajtók: 70.000.-Ft/db, - kerámia burkolatok 5.500.-Ft/nm, - parketta 4.500.-Ft/nm, - mosdó 20.000.-Ft/db, - WC 30.000.-Ft/db, - csaptelepek 15.000.-Ft/db, - kád 50.000.-Ft, - zuhanyfolyóka 25.000.-Ft, - helyiségenként 1db kiállás + kiállások 25.000.-Ft/db, - helyiségenként 1db kapcsoló + kapcsolók 35.000.-Ft/db. Elosztás: - Földszint: előtér, nappali-konyha-étkező, kamra/tároló, egy szoba, fürdőszoba + terasz + kerti tároló - Emelet: 3 szoba, közlekedő, tároló, mosókonyha/fürdő. Telek: - 370nm-es telken helyezkedik el, parkoláshoz kocsibeálló kerül kialakításra, - kaputól a bejárati ajtóig 1m széles, térkövezett járda, - Kerítés díszkővel, fa vagy acél közökkel. Környék: - Elhelyezkedése kiváló, központhoz  közeli,  helyi járatú buszmegálló, bevásárlási lehetőség, általános iskola 10 percen belül könnyen elérhető és az autópálya is pár percre van. Az ingatlant megbízható kivitelező építi! Burkolatok, belső ajtók a vevői igényei szerint még szabadon választhatók! Kérésre teljes műszaki tartalmat, alaprajzot szívesen küldünk! Irányár: 115.000.000.-Ft Hivatkozási szám: 2518261. Megtekinthető telefonos időpont egyeztetés alapján: Sápi Balázs +36 20 772-2429 sapibalazs@godolloi.hu  GÖDÖLLŐ INGATLANKÖZPONT - www.godolloi.hu: Gödöllő és környéke legnagyobb ingatlan választéka /Gödöllő, Szada, Veresegyház, Kistarcsa, Kerepes, Erdőkertes, Fót, Dunakeszi/ eladó-kiadó családi ház, telek, lakás! Ingatlan építés és felújítás!
https://ingatlanok.hu/elado/haz/godollo/115-millio-ft;113-negyzetmeter;5-szoba;kozponti-futes/11602160