Eladó családi ház Kartal 80 000 000 Ft

Leírás


Kartal központhoz közeli részén gyönyörű, természetközeli környezetben referenciákkal rendelkező kivitelező által épülő nappali + 3 szobás, tárolókapcsolatos ikerházfél eladó!

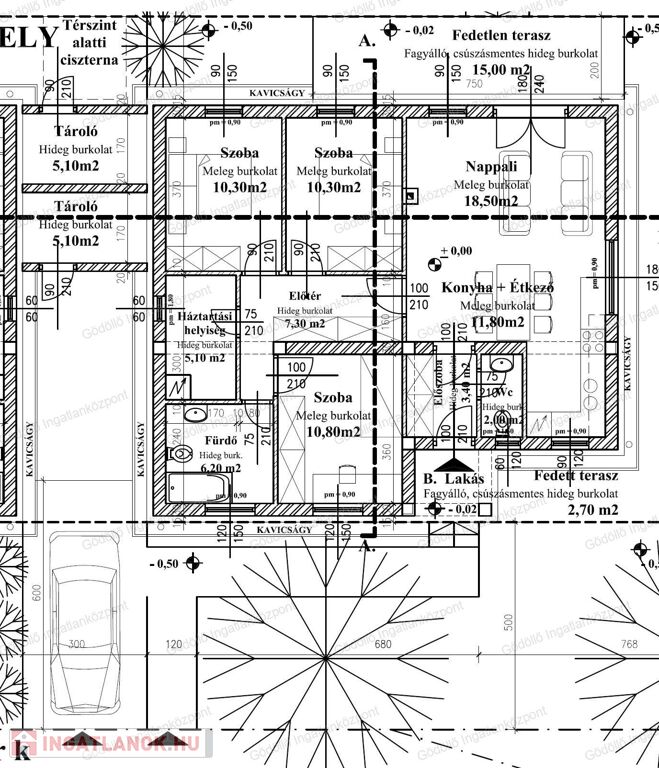
A bruttó 116, nettó 88nm-es házban előszoba, világos konyha-étkező, nappali, beépített gardróbos közlekedő, 3 különnyíló szoba, fürdőszoba, vendégmosdó és egy háztartási helyiség kerül kialakításra zuhanyzóval, ill. tartozik hozzá 5nm-es tároló, egy 2,7nm fedett és egy 15nm nyitott terasz is. 

A telek szélessége 35 méter így mindkét ház utcafronton helyezkedik el 300-300nm telekrésszel, külön kapubejárattal. Aszfaltozott, forgalommentes utca, a környéket családbarát lakóközösség jellemzi.

Parkolás 20nm faszerkezetű pergolával fedett kocsibeállóval megoldott.

Műszaki adatok:

-  30-as PTH tégla falazat, 

- 15cm homlokzati szigetelés,

- betoncserépfedés,

- horganyzott, színezett csatornarendszer,

- 12cm aljzat- és lábazati szigetelés,

- 3 réteg thermo üvegezű, kívül színezett minőségi nyílászárók,

- gázcirkó padlófűtéses hőleadással,

- 2db fűtő-hűtő klíma,

- 1db falra szerelhető törölközőszáritó,

- riasztóberendezés előkészítés,

- elektromoskapu kiállás

- energetikai besorolás: A.

Ár tartalmazza:

- csaptelepeket 25.000.-Ft /db,

- mosdókat 20.000.-Ft /db,

- 2db alsókifolyós wc falra szerelhető öblítőtartállyal 30.000.-Ft /db,

- klímákat 600.000.-Ft,

- gázcirkós fűtésrendszer 300.000.-Ft,

- bejárati ajtót 150.000.-Ft,

- beltéri ajtókat, kilincsekkel együtt 40.000.-Ft/db,

- laminált padlót 5.000.-Ft/nm,

- hideg burkolatokat 6.000.-Ft/nm értékben.

Burkolatok, belső és külső falak, cserépfedés, nyílászárók, valamint a csatornarendszer színei megbeszélés alapján szabadon választhatók.

Az ingatlant számos referenciával rendelkező kivitelező építi! 3%-os Otthon Start hitel, CSOK+ és ehhez kapcsolódó kedvezmények igénybe vehetők! Ügyvédi és földhivatali költségeket az eladó vállalja.

Szerződéskötéstől számolva 6-8 hónap a kulcsrakész átadási határidő!

Kérésre teljes műszaki tartalmat, alaprajzot szívesen küldünk!

Irányár: 80MFt (A két ház együtt 155MFt)

Hivatkozási szám: 2518294.

Megtekinthető telefonos időpont egyeztetés alapján:

Sápi Balázs +36 20 772-2429 sapibalazs@godolloi.hu  

GÖDÖLLŐ INGATLANKÖZPONT - www.godolloi.hu: Gödöllő és környéke legnagyobb ingatlan választéka /Gödöllő, Szada, Veresegyház, Kistarcsa, Kerepes, Erdőkertes, Fót, Dunakeszi/ eladó-kiadó családi ház, telek, lakás! Ingatlan építés és felújítás!

Családi ház részletei

Ár: 80 000 000 Ft
Méret: 116 négyzetméter
Azonosító: 11610724
Irodai azonosító: 2518294
Telek: 300 négyzetméter
Ingatlan állapota: Kitűnő
Jelleg: ikerház
Építőanyag: Tégla
Fűtés jellege: Központi
Komfort fokozat: Dupla komfort
Kor: Új építésű
Egész szobák: 4