Eladó családi ház Gödöllő 149 900 000 Ft

Leírás


Gödöllő keresett, kertvárosi részén, csendes, nyugodt környéken, referenciákkal rendelkező, megbízható kivitelező által épülő modern, nappali + 3 szobás ikerházfél eladó!

Műszaki adatok:

- 30-as PTH tégla falazat + 12cm grafit szigetelés, 

- 10cm válaszfalak, glettelve, fehér színűre festve, 

- lábazaton zsalukő, szigetelve, vakolva, 

- 5 légkamrás műanyag nyílászárók 3 rétegű üvegezéssel, középszürke színben,

- monolit vasbetonfödém, 

- Antracit cserépfedés,

- középszürke színű ereszcsatorna, 

- Atlantic loria hőszivattyú beépített melegvíz tárolóval, minden helyiségben padlófűtés, fürdőben törülközőszárítós radiátor, 

- riasztó, klíma előkészítés.

Ár tartalmazza:

- beltéri ajtókat 60.000.-Ft/db,

- hideg- és melegburkolatokat 5.000.-Ft/nm,

- teraszburkolatot 6.500.-Ft/nm,

- mosdókat 20.000.-Ft/db,

- csaptelepeket 15.000.-Ft/db, 

- beépített Geberit Wc kagylókat 20.000.-Ft/db,

A burkolatok és a szaniterek a vevő igényei szerint még szabadon választhatók!

Elosztás:

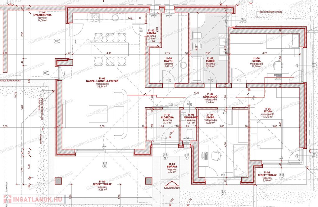
- Előszoba, nappali-konyha-étkező, kamra, 3 szoba, közlekedő, tágas fürdőszoba, vendégmosdó, háztartási helyiség + 14,28nm fedett terasz és 14nm nyári konyha

Telek:

- teljesen elszeparált kb.550nm telek,

- parkoláshoz kocsibeálló kerül kialakításra.

Környék:

- Nagyon jó környék, gyalog minden 5 percen belül elérhető.

Várható kulcsrakész átadás  2026.03.

Kérésre teljes műszaki tartalmat, alaprajzot szívesen küldünk! 

Irányár: 149,9Mft

Hivatkozási szám: 2518132.

Megtekinthető telefonos időpont egyeztetés alapján:

Sápi Balázs +36 20 772-2429 sapibalazs@godolloi.hu 

GÖDÖLLŐ INGATLANKÖZPONT - www.godolloi.hu: Gödöllő és környéke legnagyobb ingatlan választéka /Gödöllő, Szada, Veresegyház, Kistarcsa, Kerepes, Erdőkertes, Fót, Dunakeszi/ eladó-kiadó családi ház, telek, lakás! Ingatlan építés és felújítás!

 

 

 

 

Családi ház részletei

Ár: 149 900 000 Ft
Méret: 145 négyzetméter
Azonosító: 11607076
Irodai azonosító: 2518132
Telek: 550 négyzetméter
Ingatlan állapota: Kitűnő
Jelleg: ikerház
Építőanyag: Tégla
Komfort fokozat: Összkomfort
Kor: Új építésű
Egész szobák: 4